HOME  >  物件詳細

医療モール・ビレッジ 〔愛知県名古屋市名東区高針台〕名東区高針台戸建て 居抜き物件(賃貸)

人気が高い名東区で希少な戸建て物件

 

募集科目

  • 内科
  • 循環器科
  • 消化器科
  • 呼吸器科
  • 泌尿器科
  • 小児科
  • 耳鼻咽喉科
  • 眼科
  • 産婦人科
  • 皮膚科
  • 心療内科・精神科
  • 整形外科
  • 歯科
  • その他
特長
  • 名古屋市の土地区画整理事業や地下鉄路線の整備により、生活利便性の高いベッドタウンとして
    発展した地域となり、周辺は一戸建て中心の閑静な住宅街です。

  • 内科跡地の居抜き物件のため、部屋割りなどはクリニック仕様となっている希少物件です。

  • 築10年のため内装が清潔に保たれており、内装費用を抑えることで低コストでの開業が可能です。

物件概要

開業形態

新規

住所

愛知県名古屋市名東区高針台2丁目907−2

科目

内科 循環器科 消化器科 呼吸器科 泌尿器科 小児科 耳鼻咽喉科 眼科 産婦人科 皮膚科 心療内科・精神科 

階層

1階建て/1階

面積

52.36坪

賃料

500,000円/月(税別)

保証金(敷金)

応相談

償却

礼金

応相談

共益費

未定

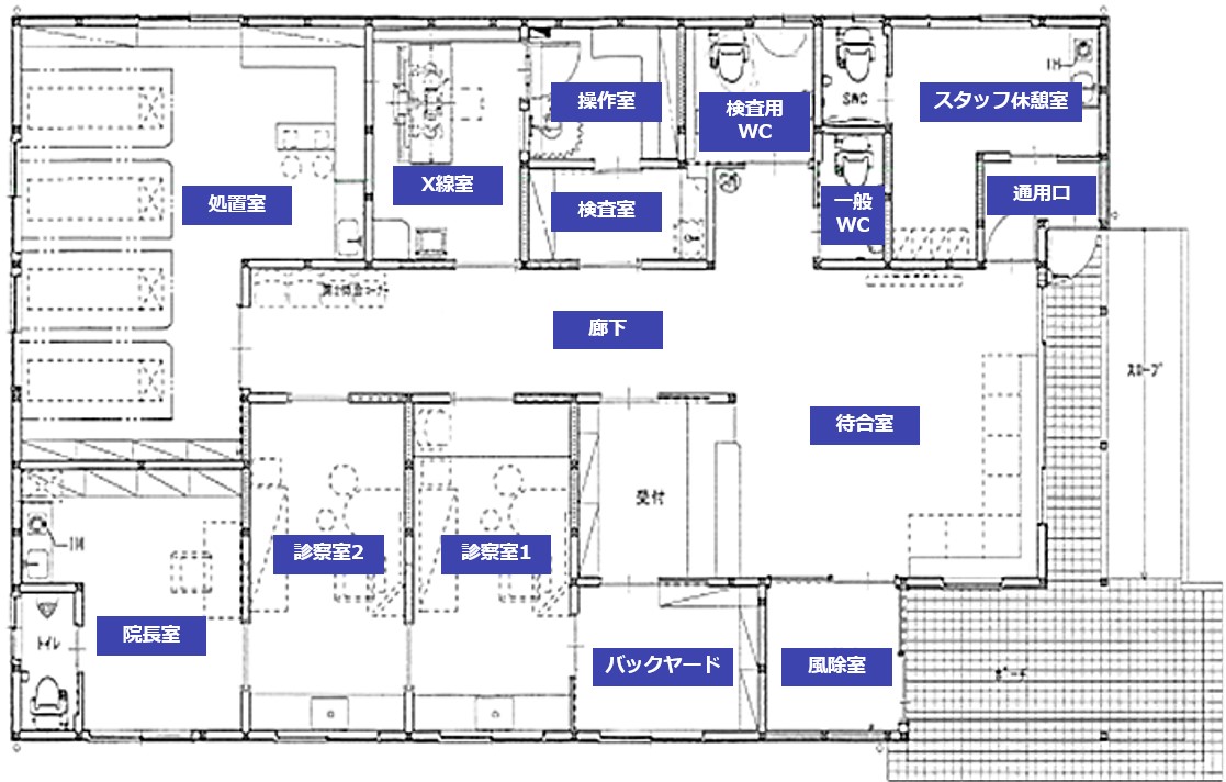
配置図・間取り
MAP&アクセス

市バス「高針台中学校」バス停 徒歩7分
市バス「極楽西」バス停 徒歩5分

PRコメント
  • 平屋で戸建ての本物件は2015年に竣工し、内装に清潔感があります。建築費の高騰が続いている昨今、
    現状の内装を活かすことで初期投資を抑えての開業が可能となります。内見もご案内できますので、
    お気軽にお問合せください。
無料相談
  •  

または

下記の申し込みフォームからお気軽にお問い合わせください。

無料相談申し込みフォーム

愛知県名古屋市名東区高針台 名東区高針台戸建て 居抜き物件(賃貸)についての問い合わせ
必須事項をご記入後、確認画面にお進みください。は必須事項です

お名前

姓:  名:

連絡先(どちらか1つは必須

メールアドレス
 [半角英数記号]記入例)wholesalestars@wss-inc.co.jp

確認用メールアドレス
 [半角英数記号]記入例)wholesalestars@wss-inc.co.jp

電話番号
 [半角英数記号]記入例)090-1234-5678

生まれた年

年 / 性別   

診療科目

開業予定場所

開業予定時期

 

お問い合わせ内容


記入例)※渋谷駅近くで開業希望 ※現在勤務する病院近くで開業希望

 プライバシーポリシー詳細

お問い合わせをする際は、上記の「プライバシーポリシー」に同意していただく必要があります。

最新物件情報