HOME  >  物件詳細

医療モール・ビレッジ 〔愛知県豊田市三軒町〕クリニックタウン豊田三軒町

車やバスでのアクセス良好!集患力のある好立地で医療モールを計画中

 

募集科目

  • 内科
  • 循環器科
  • 消化器科
  • 呼吸器科
  • 泌尿器科
  • 小児科
  • 耳鼻咽喉科
  • 眼科
  • 産婦人科
  • 皮膚科
  • 心療内科・精神科
  • 整形外科
  • 歯科
  • その他
特長
  • 視認性の良い通り沿いに位置する洗練された新築クリニックタウン

  • 物件周辺にはクリニックが少なく、様々な診療科の集患が期待できる

  • 駐車場は64台分完備されており、車でのアクセスが良好

物件概要

開業形態

新規

住所

愛知県豊田市三軒町1-12、13-1、14-1

科目

内科 循環器科 消化器科 呼吸器科 泌尿器科 小児科 耳鼻咽喉科 眼科 産婦人科 皮膚科 心療内科・精神科 整形外科 その他 

階層

2階建て/2階

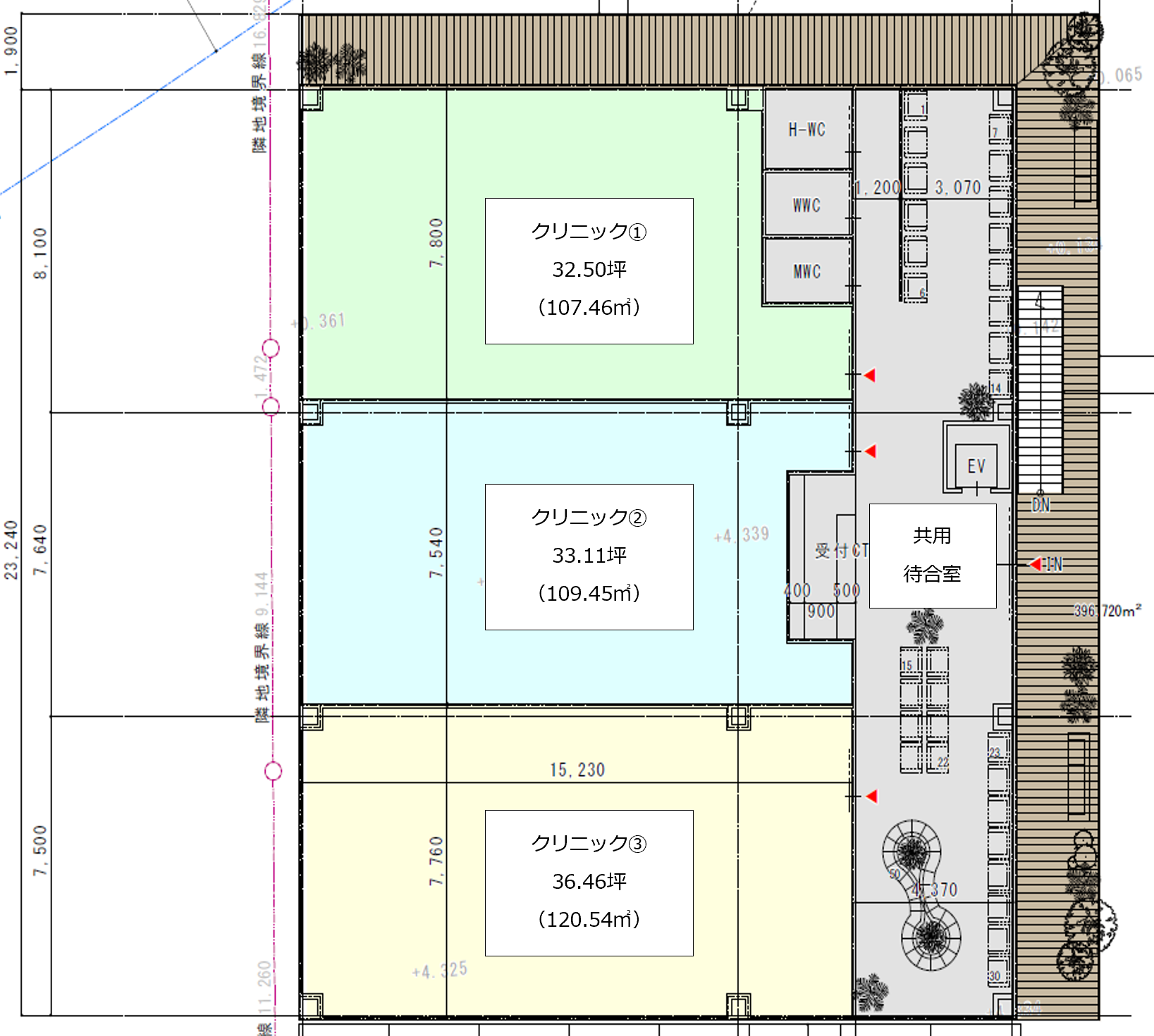
面積

①32.50坪、②33.11坪、③36.46坪

賃料

11,000円(税抜)/坪
駐車場1台あたり7,700円(税抜)/月

保証金(敷金)

4,670,000円(10か月分)

償却

2,568,500円(50%)

礼金

513,700円(1か月分)

共益費

44,000円(税抜)

配置図・間取り
MAP&アクセス

名鉄バス「三軒町」下車 徒歩約5分
名鉄三河線「豊田市」駅 徒歩約30分

PRコメント
  • 豊田市三軒町に計画中の新築クリニックタウンです。周辺には住宅地が広がっていますが、500m圏内の
    クリニックは歯科1件のみ、1km圏内に広げても5件と競合が少なく、ファミリー層から高齢者層まで様々な
    診療科の集患が期待できる立地となっています。また、駐車場64台分を完備し、車でのアクセスも良好な
    物件です。現在のところ、賃貸条件は15年契約を想定しています。
無料相談
  •  

または

下記の申し込みフォームからお気軽にお問い合わせください。

無料相談申し込みフォーム

愛知県豊田市三軒町 クリニックタウン豊田三軒町についての問い合わせ
必須事項をご記入後、確認画面にお進みください。は必須事項です

お名前

姓:  名:

連絡先(どちらか1つは必須

メールアドレス
 [半角英数記号]記入例)wholesalestars@wss-inc.co.jp

確認用メールアドレス
 [半角英数記号]記入例)wholesalestars@wss-inc.co.jp

電話番号
 [半角英数記号]記入例)090-1234-5678

生まれた年

年 / 性別   

診療科目

開業予定場所

開業予定時期

 

お問い合わせ内容


記入例)※渋谷駅近くで開業希望 ※現在勤務する病院近くで開業希望

 プライバシーポリシー詳細

お問い合わせをする際は、上記の「プライバシーポリシー」に同意していただく必要があります。

最新物件情報