HOME  >  物件詳細

医療モール・ビレッジ 〔静岡県浜松市中区中央〕浜松メディカルパークビル

浜松市内中心部に立地しているメディカルモール

 

募集科目

  • 内科
  • 循環器科
  • 消化器科
  • 呼吸器科
  • 泌尿器科
  • 小児科
  • 耳鼻咽喉科
  • 眼科
  • 産婦人科
  • 皮膚科
  • 心療内科・精神科
  • 整形外科
  • 歯科
  • その他
特長
  • 遠州病院駅徒歩3分、JR浜松駅徒歩10分の好立地。
    浜松市内中心部に立地しているメディカルモールです。

  • 同ビル内には内科、眼科、耳鼻咽喉科、歯科、心療内科、整形外科、皮膚科が開院済みのため、
    他クリニックとの連携が図れます。

  • 駐車場20台完備で車でのアクセスも良好です。

物件概要

開業形態

新規

住所

静岡県浜松市中区中央1-15-5

科目

産婦人科 

階層

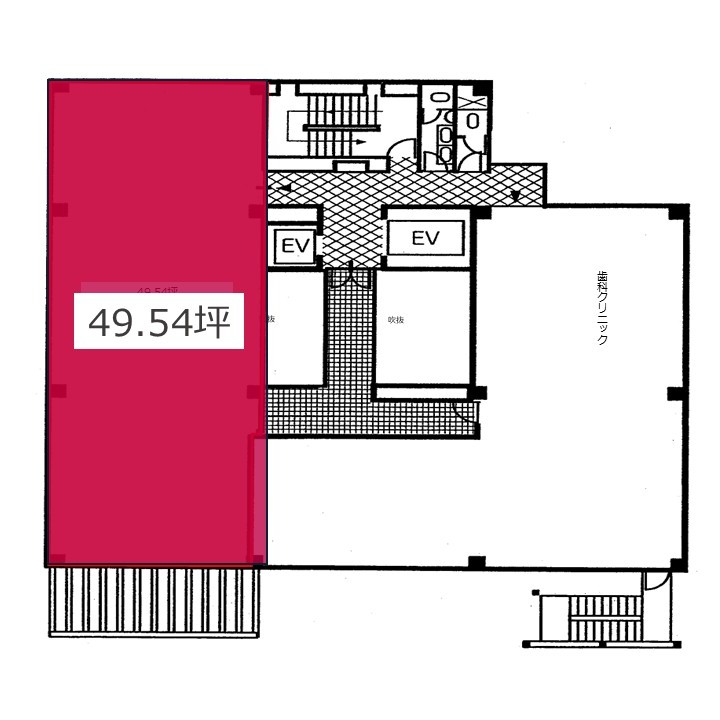
5階建て/5階

面積

5階:49.54坪

賃料

8,000円(税別)/坪

保証金(敷金)

償却

礼金

共益費

3,900円(税別)/坪

配置図・間取り
MAP&アクセス

遠州鉄道 遠州病院駅徒歩3分
JR浜松駅徒歩10分

PRコメント
  • 現状、半径1km圏内に一般の産婦人科クリニックが無いため(不妊治療専門1件あり)、患者様の来院が
    期待できる物件になります。スケルトン引渡しのため、内装工事次第ですぐに開業可能です。
無料相談
  •  

または

下記の申し込みフォームからお気軽にお問い合わせください。

無料相談申し込みフォーム

静岡県浜松市中区中央 浜松メディカルパークビルについての問い合わせ
必須事項をご記入後、確認画面にお進みください。は必須事項です

お名前

姓:  名:

連絡先(どちらか1つは必須

メールアドレス
 [半角英数記号]記入例)wholesalestars@wss-inc.co.jp

確認用メールアドレス
 [半角英数記号]記入例)wholesalestars@wss-inc.co.jp

電話番号
 [半角英数記号]記入例)090-1234-5678

生まれた年

年 / 性別   

診療科目

開業予定場所

開業予定時期

 

お問い合わせ内容


記入例)※渋谷駅近くで開業希望 ※現在勤務する病院近くで開業希望

 プライバシーポリシー詳細

お問い合わせをする際は、上記の「プライバシーポリシー」に同意していただく必要があります。